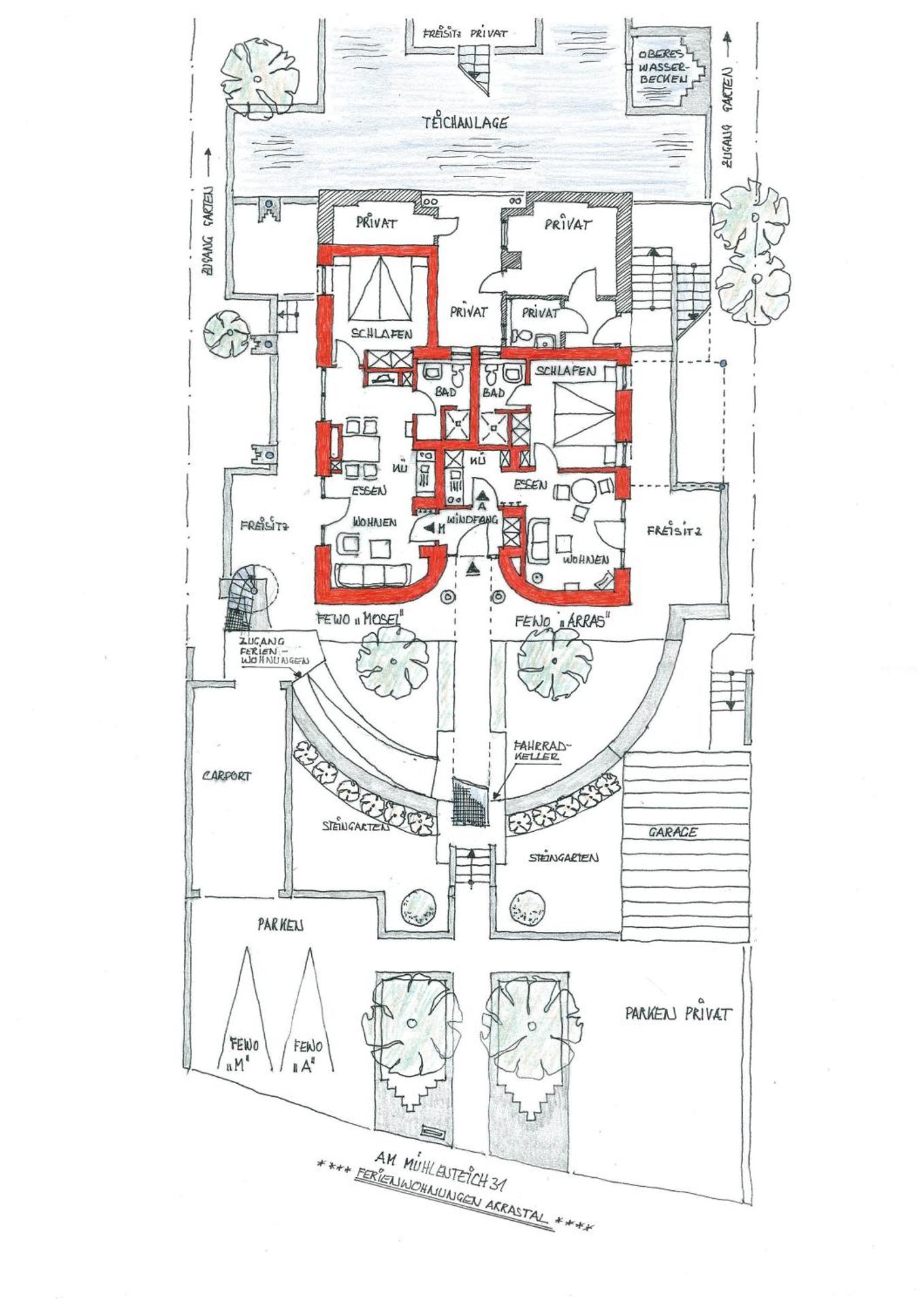
Ferienwohnung "Mosel"
Am Mühlenteich 31, Rhineland-Palatinate
9.8
Fantastic · 8 reviews






























1 / 30
About the hotel
Facilities
- Pet friendly
- Non-smoking rooms
- Safe
- Heating
- Hypoallergenic room available
- Smoke-free property
- Adults only
- Wifi in all areas
Important information
From
€232total for 2 nights
Inclusive of taxes and fees- ✓ Free cancellation
You will be redirected to Booking.com to complete your booking safely












































