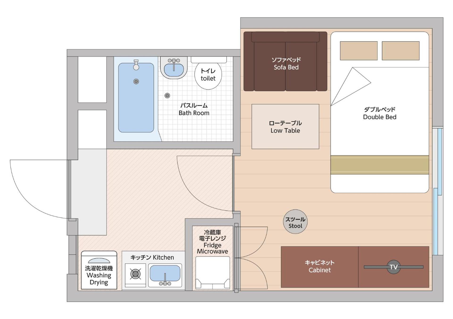
大井町アパートメントホテル豊強ビル
大井1丁目21−2 豊強ビル, Shinagawa (Speciale Wijk), Prefectuur Tokyo
7.3
Zeer goed · 82 beoordelingen






























1 / 30
Over het hotel
Faciliteiten
- Non-smoking rooms
- Family rooms
- Elevator
- Heating
- Smoke-free property
- Air conditioning
- Wifi in all areas
Belangrijke informatie
- ✓ Gratis annulering
Je wordt doorgestuurd naar Booking.com om je boeking veilig af te ronden
Locatie
Beoordelingen
7.3
Zeer goed · 82 beoordelingen
Personeel8.2
Locatie7.9
Schoonmaak7.4
Prijs-kwaliteit7.3
Comfort7.2
Faciliteiten7.0








































